Vissza

Eladó 58 m² Lakás Budapest, SASAD felső részén – E49575

138 000 000 Ft
58 nm
alapterület
2
szoba
E49575
ingatlankód
TipusLakás
CímBudapest, SASAD felső részén
FekvésKertre néző
Lakótér mérete58 nm
Szobaszám2
Emelet1
Terasz mérete8 nm
FűtésLevegő-hőszivattyú
ÉpítőanyagTégla
ÁllagÚj építésű
Telek mérete0
ParkolásGarázs
Ár138 000 000 Ft

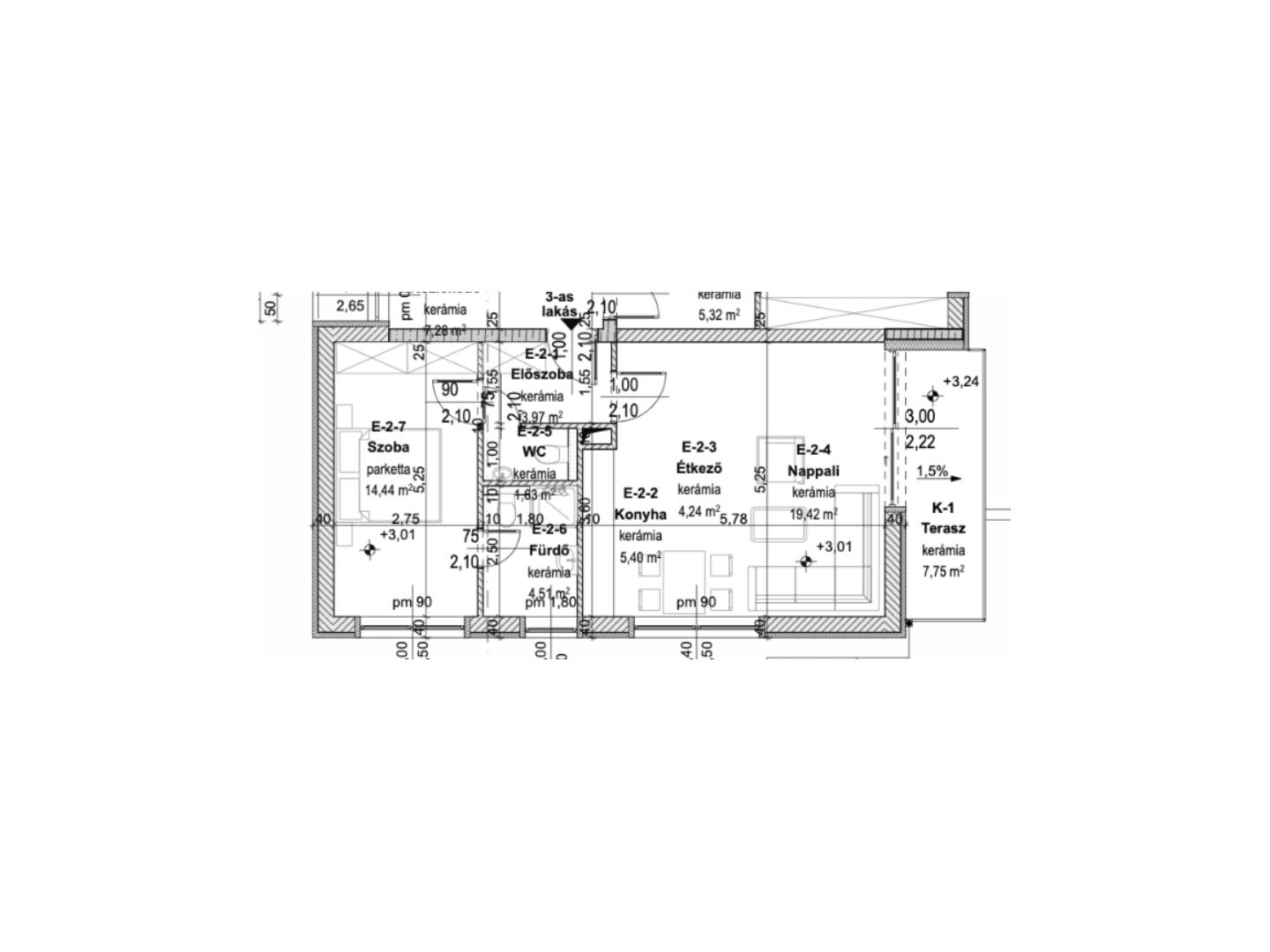
SASADON, ÚJÉPÍTÉSŰ, PRÉMIUM MINŐSÉGŰ LAKÁSOK ELADÓK! Budán, Sasad csendes, mégis frekventált részén épül ez a 4 lakásos, modern társasház, melyben 2–4 szobás, igényes otthonok várják új tulajdonosaikat. A több évtizedes tapasztalattal rendelkező beruházó és kivitelező neve garancia a minőségre, a gondos tervezésre és a precíz kivitelezésre. A lakások kiváló benapozottságúak, energiatakarékosak, és hőszivattyús rendszerrel, mennyezeti hűtés-fűtéssel, valamint padlófűtéssel készülnek. A belső elrendezés és burkolatok a vevők igényei szerint alakíthatók, így minden lakás valóban egyedi otthonná válhat. A társasházhoz teremgarázs és tárolók is tartoznak, külön megvásárolható formában. A MEGHIRDETETT LAKÁS – 1. EMELETI, ERKÉLYES OTTHON Az 58 m²-es, amerikai konyhás nappali + 1 hálószobás lakás tökéletes választás azoknak, akik modern, világos, jól szervezett teret keresnek. A déli fekvésű, tágas nappali (kb. 29 m²) nagy üvegfelületeinek köszönhetően egész nap fényárban úszik, és közvetlen kapcsolatban áll a 8 m²-es, napos terasszal – ideális hely a reggeli kávéhoz vagy esti pihenéshez. A lakásban külön WC és egy kényelmes fürdőszoba is található, a praktikus elrendezés pedig kényelmes mindennapokat biztosít akár egy pár, akár egyedülálló számára. Főbb jellemzők: • 58 m² hasznos alapterület • Amerikai konyhás nappali (kb. 29 m²) • 1 hálószoba • Déli fekvés – világos, napfényes lakás • 8 m²-es terasz, közvetlenül a nappaliból • Fürdőszoba és külön WC • Igény szerint alakítható burkolatok és belső terek • Privát, zárható tároló Műszaki tartalom: • Hőszivattyús fűtés padlófűtéssel • Mennyezeti hűtés-fűtés rendszer • Nagy üvegfelületek, természetes fény egész nap • Prémium minőségű burkolatok és kivitelezés Külön megvásárolható: • Teremgarázs-beállóhely: +15 M Ft • Tárolóhelyiség: +3 M Ft Várható átadás: 2027 Ez a lakás tökéletes választás azoknak, akik kényelmes, napfényes, modern otthont keresnek Sasad egyik legkedveltebb részén – kiváló műszaki tartalommal és időtálló értékkel.

Közművek
VízVillanyGázCsatornaTVInternet
Van Van Van Van Van Van
Kapcsolatfelvétel
Hosszú Levente
Iroda ElérHetőségek

1112 Budapest,
Cseresznye utca 56.
Telefon: 06 1 246 3991
Mobil: 06 70 456 1120

Nyitva: Hétfő-Péntek 9:00-17:00-ig

Referenciáink

Cordia Terrace
Madárhegy Lakópark
MOM lakópark
Sasad Liget
Madárterasz - Zöldotthonok
Buda Diamond Apartmanház

(C) 1992-2026 BH Ingatlan Kft. Minden jog fenntarta
uh.derbi@ygehsas :liam-E | Adatkezelési nyilatkozat | Weboldal készítés